Thorn Street Brewery has taken over the orange-clad industrial warehouse at 1735 National Avenue in the Barrio Logan neighborhood, which most recently housed the now-defunct San Diego Public Market, in order to expand its brewery operations and add a distilling component - Thorn Spirits.
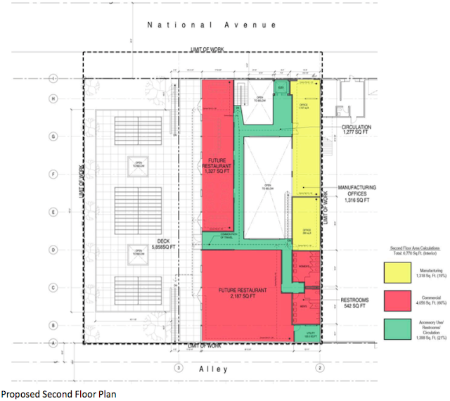
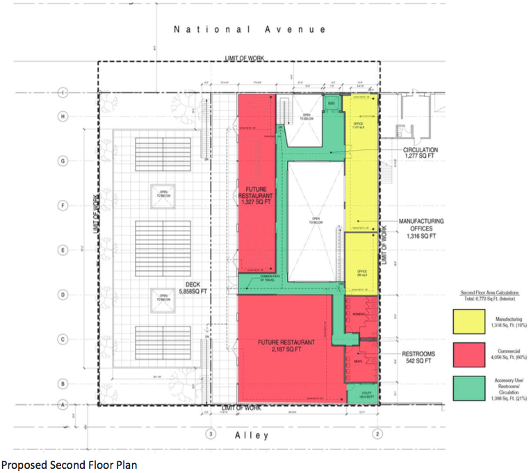
Thorn St. Brewery has taken over the 21,00 square foot warehouse in Barrio Logan and is currently transforming the space into the company's primary brewery. With its new 30 barrel system, Thorn Street hopes to expand its brewing operations from 5,000 to 30,000 barrels per year. The new Thorn Street Brewing Company will, technically, be a separate entity from Thorn St. Brewery, but the bi-level space will brew the company's core beers for its North Park location and also intends to add distilling to its resume in the near future - Thorn Spirits. The new brewery also will implement a canning component so that Thorn Street can expand its distribution.
Dan Carrico, Dennis O'Connor, and Eric O'Connor started Thorn St. Brewery at 3176 Thorn Street in North Park in 2012 after previously using the space as an outlet for home brewers. For more information, visit thornstreetbrew.com.


